宮崎県宮崎市の小学校に通える不動産一覧

  • 種別

  • 価格

  • 小学校徒歩

  • 建物面積

  • 間取り

476 件 / 全515件

  1. 前へ
  2. 1
  3. ...
  4. 62
  5. 63
  6. 64
  7. 65
  8. 66
  9. ...
  10. 80
  11. 次へ

チェックした物件をまとめて

開放感あふれる高台の住まい。陽当たり良好で快適な暮らしを実現!

間取り
外観

2,080万円

 

所在地

宮崎県宮崎市田野町甲

交通

JR日豊本線 『田野駅』 まで徒歩8分
JR日豊本線 『日向沓掛駅』 まで徒歩55分
JR日豊本線 『青井岳駅』 まで徒歩132分

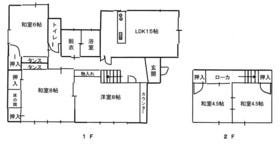
建物面積 75.35m2 間取り 3LDK 建物構造 木造
土地面積 168.85m2 築年月 2024年08月 学区 田野小学校(約680m)
スタッフ写真

担当者より最寄り駅まで徒歩8分!生活に便利な施設も充実しています。 落ち着いた環境で快適な暮らしを実現しませんか? ぜひ現地で雰囲気を感じてみてください!

担当エージェント:小玉 賢太

  • パノラマ写真
  • リフォーム済
  • 駐車場あり
  • 写真5枚以上
  • オープンハウス開催

開放感あふれる高台の住まい。陽当たり良好で快適な暮らしを実現!

間取り
外観

2,080万円

 

所在地

宮崎県宮崎市田野町甲

交通

JR日豊本線 『田野駅』 まで徒歩8分
JR日豊本線 『日向沓掛駅』 まで徒歩55分
JR日豊本線 『青井岳駅』 まで徒歩132分

建物面積 75.35m2 間取り 3LDK 建物構造 木造
土地面積 160.23m2 築年月 2024年08月 学区 田野小学校(約680m)
スタッフ写真

担当者より最寄り駅まで徒歩8分!生活に便利な施設も充実しています。 落ち着いた環境で快適な暮らしを実現しませんか? ぜひ現地で雰囲気を感じてみてください!

担当エージェント:小玉 賢太

  • パノラマ写真
  • リフォーム済
  • 駐車場あり
  • 写真5枚以上
  • オープンハウス開催

南向き&緑豊かな住環境!広々LDKと収納充実の快適な住まい。

間取り
外観

2,998万円

 

所在地

宮崎県宮崎市大字郡司分

交通

JR日南線 『南方駅』 まで徒歩19分
JR日南線 『木花駅』 まで徒歩28分
JR日南線 『運動公園駅』 まで徒歩46分

建物面積 86.11m2 間取り 3LDK 建物構造 木造
土地面積 243.46m2 築年月 2024年12月 学区 国富小学校(約1310m)
スタッフ写真

担当者より広々とした敷地で、のびのびと暮らせる住まいです。 周辺にはスーパーや公園、クリニックもあり、生活利便性も◎! ぜひ一度、現地をご覧ください!

担当エージェント:小玉 賢太

  • パノラマ写真
  • リフォーム済
  • 駐車場あり
  • 写真5枚以上
  • オープンハウス開催

静かな住吉エリアでのびのび暮らす♪

間取り
外観

3,000万円

 

所在地

宮崎県宮崎市大字島之内

交通

JR日豊本線 『日向住吉駅』 まで徒歩15分
JR日豊本線 『蓮ケ池駅』 まで徒歩43分
宮崎交通住吉 まで徒歩5分

建物面積 173.17m2 間取り 5LDK+S 建物構造 木造
土地面積 652.65m2 築年月 1990年08月 学区 住吉小学校(約1080m)
スタッフ写真

担当者より周辺は落ち着いた雰囲気で、子育てにも◎ 駅・バス停・学校・買い物環境も整っており、永住にも適した立地です。 お気軽にお問い合わせ・ご内覧ください!

担当エージェント:小玉 賢太

  • パノラマ写真
  • リフォーム済
  • 駐車場あり
  • 写真5枚以上
  • オープンハウス開催

最上階・南向き!設備充実の築浅2LDKマンション♪

間取り
外観

3,780万円

 

所在地

宮崎県宮崎市松山2丁目

交通

JR日豊本線 『宮崎駅』 まで徒歩18分
JR日豊本線 『南宮崎駅』 まで徒歩17分
JR日豊本線 『宮崎神宮駅』 まで徒歩50分
宮崎交通観光ホテル前 まで徒歩3分

専有面積 73.44m2 築年月 2021年04月 間取り 2LDK
所在階 15階建て/15階 建物構造 RC 学区 宮崎小学校(約770m)
スタッフ写真

担当者より松山エリアで希少な築浅・最上階物件! 立地・設備・日当たりと三拍子そろったおすすめのお部屋です。 ぜひ一度ご見学ください!

担当エージェント:小玉 賢太

  • パノラマ写真
  • リフォーム済
  • 駐車場あり
  • 写真5枚以上
  • オープンハウス開催
間取り
外観

2,380万円

 

所在地

宮崎県宮崎市大字熊野

交通

JR日南線 『木花駅』 まで徒歩6分
JR日南線 『運動公園駅』 まで徒歩18分
JR日南線 『曽山寺駅』 まで徒歩32分

建物面積 85.28m2 間取り 3LDK 建物構造 木造
土地面積 118.26m2 築年月 2017年02月 学区 木花小学校(約600m)
スタッフ写真

担当者よりご覧いただきありがとうございます!ハウスドゥ清武加納です。 お客様のご希望に合わせ柔軟に対応します。お気軽にお問い合わせください。 しつこい営業は一切行いませんので安心してご相談ください!

担当エージェント:小玉 賢太

  • パノラマ写真
  • リフォーム済
  • 駐車場あり
  • 写真5枚以上
  • オープンハウス開催

もっとたくさん物件がみたい!という方へ

店頭ではHPに掲載できない物件を併せて
768件をご案内できます!

来店予約して物件を探す お気軽にご来店下さい!

店頭で

ご希望にマッチした物件や、新着・値下げ情報を
即日メールにてお届けします!

マイページに希望情報を登録する 新着物件メールもお届け!

Webで

476 件 / 全515件

  1. 前へ
  2. 1
  3. ...
  4. 62
  5. 63
  6. 64
  7. 65
  8. 66
  9. ...
  10. 80
  11. 次へ

どんな街か、もっと知りたい!
地元密着のスタッフがお応えいたします!

来店予約して物件を探す お気軽にご来店下さい! スタッフ

ページトップ

ページトップ