宮崎県宮崎市の小学校に通える不動産一覧

  • 種別

  • 価格

  • 小学校徒歩

  • 建物面積

  • 間取り

487 件 / 全515件

  1. 前へ
  2. 1
  3. ...
  4. 41
  5. 42
  6. 43
  7. 44
  8. 45
  9. ...
  10. 82
  11. 次へ

チェックした物件をまとめて

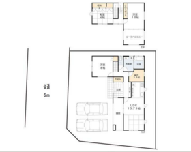
ウッドデッキ付きでおうち時間充実!大塚町小原田の快適中古戸建♪

間取り
外観

3,390万円

 

所在地

宮崎県宮崎市大塚町小原田

交通

JR日豊本線 『宮崎駅』 まで徒歩50分
JR日豊本線 『南宮崎駅』 まで徒歩50分
JR日豊本線 『宮崎神宮駅』 まで徒歩67分

建物面積 161.56m2 間取り 4LDK 建物構造 木造
土地面積 341.32m2 築年月 1995年08月 学区 大塚小学校(約580m)
スタッフ写真

担当者より大塚小・大塚中エリアでお探しの方に朗報です! こちらの物件は、ゆったりとした敷地にお庭&ウッドデッキ付き。 晴れた日にはご家族やペットと過ごすのにぴったりの空間です♪ 居住中につき、事前の内覧予約をお願いしております。 気になる方はぜひお気軽にご相…

担当エージェント:小玉 賢太

  • パノラマ写真
  • リフォーム済
  • 駐車場あり
  • 写真5枚以上
  • オープンハウス開催

宮崎駅徒歩14分!利便性抜群の中古マンション♪

間取り
外観

3,280万円

 

所在地

宮崎県宮崎市清水1丁目

交通

JR日豊本線 『宮崎駅』 まで徒歩14分
JR日豊本線 『宮崎神宮駅』 まで徒歩33分
JR日豊本線 『南宮崎駅』 まで徒歩37分
宮崎交通MRT前 まで徒歩2分

専有面積 73.90m2 築年月 2023年01月 間取り 3LDK
所在階 14階建て/7階 建物構造 RC 学区 西池小学校(約800m)
スタッフ写真

担当者より宮崎市中心部の好立地マンション! 通勤・通学・買い物に便利で、快適な暮らしをサポートします♪ ぜひ一度、実際にご覧ください!

担当エージェント:小玉 賢太

  • パノラマ写真
  • リフォーム済
  • 駐車場あり
  • 写真5枚以上
  • オープンハウス開催

JR日向住吉駅まで徒歩8分!快適な住環境の中古戸建♪

間取り
外観

2,999万円

 

所在地

宮崎県宮崎市大字島之内

交通

JR日豊本線 『日向住吉駅』 まで徒歩8分
JR日豊本線 『蓮ケ池駅』 まで徒歩48分
JR日豊本線 『佐土原駅』 まで徒歩61分

建物面積 83.01m2 間取り 3LDK 建物構造 木造
土地面積 172.86m2 築年月 2019年06月 学区 住吉小学校(約2090m)
スタッフ写真

担当者よりJR日向住吉駅まで徒歩8分と利便性の高い立地♪ 周辺には自然も多く、落ち着いた暮らしを求める方にピッタリです! ぜひ一度、現地をご覧ください♪

担当エージェント:小玉 賢太

  • パノラマ写真
  • リフォーム済
  • 駐車場あり
  • 写真5枚以上
  • オープンハウス開催

利便性◎ バス停徒歩1分の中古マンション♪

間取り
外観

2,350万円

 

所在地

宮崎県宮崎市和知川原1丁目

交通

JR日豊本線 『宮崎駅』 まで徒歩27分
JR日豊本線 『宮崎神宮駅』 まで徒歩31分
JR日豊本線 『南宮崎駅』 まで徒歩49分
宮崎交通花殿町 まで徒歩1分

専有面積 76.59m2 築年月 2005年09月 間取り 3LDK
所在階 10階建て/1階 建物構造 RC 学区 西池小学校(約460m)
スタッフ写真

担当者より人気のメゾネットタイプのマンションです! バス停徒歩1分で交通アクセス良好♪ 周辺にはスーパーや飲食店も揃っており、住みやすい環境が整っています♪ ぜひ一度、実際にご覧ください!

担当エージェント:小玉 賢太

  • パノラマ写真
  • リフォーム済
  • 駐車場あり
  • 写真5枚以上
  • オープンハウス開催

【南向き&高台】快適な3LDK!収納充実&設備充実!

間取り
外観

3,280万円

 

所在地

宮崎県宮崎市大字本郷北方

交通

JR日豊本線 『加納駅』 まで徒歩14分
JR宮崎空港線 『田吉駅』 まで徒歩29分
JR日豊本線 『南宮崎駅』 まで徒歩33分
宮崎交通月見ヶ丘6丁目 まで徒歩4分

建物面積 96.87m2 間取り 3LDK 建物構造 木造
土地面積 165.08m2 築年月 2025年03月 学区 宮崎南小学校(約1940m)
スタッフ写真

担当者より南向き&高台で快適な3LDK!収納充実&設備充実の理想の住まいです。ぜひご見学ください!

担当エージェント:小玉 賢太

  • パノラマ写真
  • リフォーム済
  • 駐車場あり
  • 写真5枚以上
  • オープンハウス開催

【南向き&高台】快適な3LDK!充実設備&収納力抜群

間取り
外観

3,280万円

 

所在地

宮崎県宮崎市大字本郷北方

交通

JR日豊本線 『加納駅』 まで徒歩14分
JR宮崎空港線 『田吉駅』 まで徒歩29分
JR日豊本線 『南宮崎駅』 まで徒歩33分
宮崎交通月見ヶ丘6丁目 まで徒歩4分

建物面積 99.36m2 間取り 3LDK 建物構造 木造
土地面積 180.37m2 築年月 2025年03月 学区 宮崎南小学校(約1940m)
スタッフ写真

担当者より高台&南向きで快適な3LDK!収納充実&設備も充実した理想の住まいです。ぜひご覧ください!

担当エージェント:小玉 賢太

  • パノラマ写真
  • リフォーム済
  • 駐車場あり
  • 写真5枚以上
  • オープンハウス開催

もっとたくさん物件がみたい!という方へ

店頭ではHPに掲載できない物件を併せて
768件をご案内できます!

来店予約して物件を探す お気軽にご来店下さい!

店頭で

ご希望にマッチした物件や、新着・値下げ情報を
即日メールにてお届けします!

マイページに希望情報を登録する 新着物件メールもお届け!

Webで

487 件 / 全515件

  1. 前へ
  2. 1
  3. ...
  4. 41
  5. 42
  6. 43
  7. 44
  8. 45
  9. ...
  10. 82
  11. 次へ

どんな街か、もっと知りたい!
地元密着のスタッフがお応えいたします!

来店予約して物件を探す お気軽にご来店下さい! スタッフ

ページトップ

ページトップ